Precision Craftsmanship. Proven Results.

We deliver proven water and wastewater solutions with precision, integrity, and innovation

A worker cleaning the sedimentation basin of a water treatment plant with a long-handled brush.

To design and manufacture high-quality, reliable process equipment that serves municipal and industrial water and wastewater clients — delivered with engineering expertise, responsive service, and lasting performance.

To be the industry’s trusted partner for proven, practical treatment solutions — combining time-tested methods with modern fabrication to protect vital water resources around the world.

• Offer equipment solutions that are both technically superior and economically practical.
• Support every installation with dependable service.
• Keep improving our designs so plants of every size can run cleaner, safer, and longer.

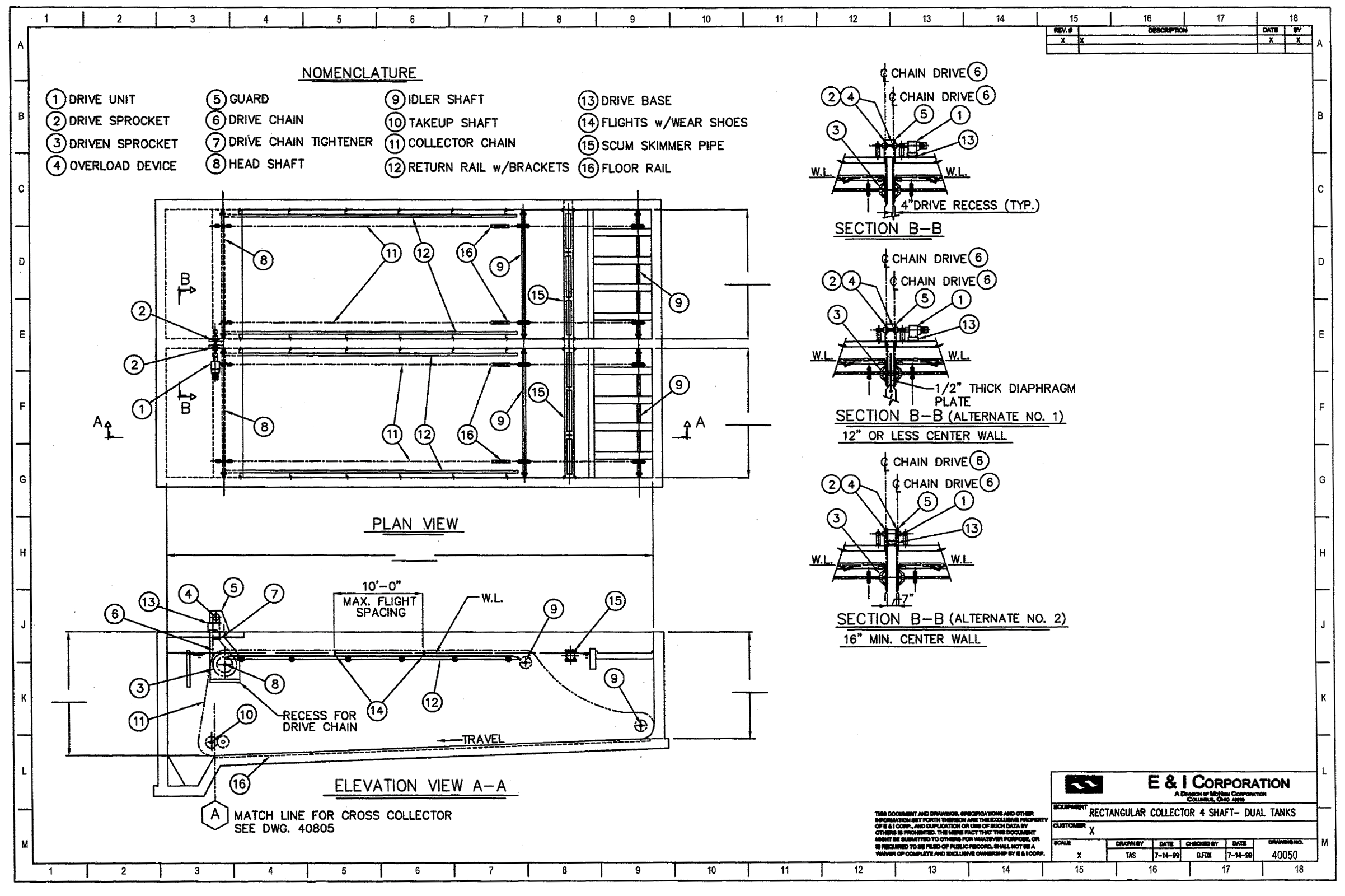
Technical engineering drawing of a rectangular dual tank collector with detailed views of components and assembly, including a nomenclature list and sectional views.

50 Years In The Pursuit of Excellence

Founded in 1975, E & I Corporation has built a legacy of engineering excellence in the design and manufacture of process equipment for the municipal and industrial water and wastewater markets.

For five decades, we’ve combined proven treatment methods with modern innovation to deliver systems that perform reliably, efficiently, and economically.

Our commitment to quality, service, and integrity has earned us the trust of clients across the globe—ensuring every project benefits from practical experience, precision manufacturing, and a relentless pursuit of better solutions for clean water.

A scientist wearing safety glasses working with a glowing laser beam in a laboratory.

We’re here to ensure you get the most out of your equipment

A person is drawing on a large piece of paper with a black pen, with blurred background.

Ready to get your

project underway?